Pulse
- Catégorie(s) : Bureaux & sièges sociaux
- Lieu : Siège Social, 35 rue de la Gare, Paris
- Design : Pierre & Maurice
- Client : Icade
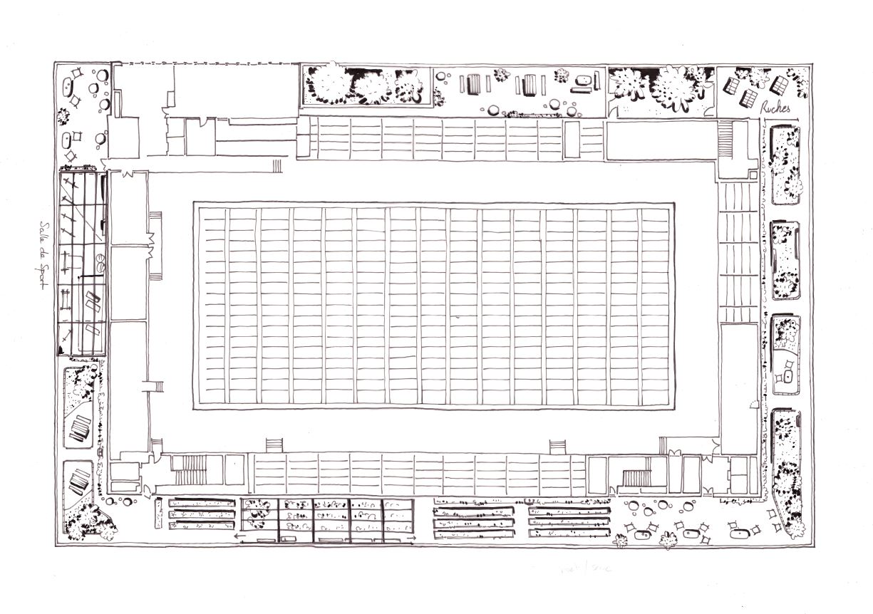
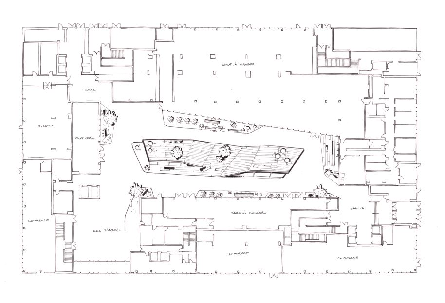
Icade nous interroge pour une mission de direction artistique / design des espaces communs du futur site Pulse. Situé au bord de Paris, ce site exceptionnel est un « centre d'affaires » qui pourra accueillir un ou plusieurs preneurs. Aussi, a été définie une programmation incluant restaurations et autres prestations modernes ou prestigieuses. Le site a besoin de valoriser ses espaces communs dit « de passage » pour répondre aux ambitions de commercialisation.